Home » Comunicati stampa » Pomezia, valorizzazione dei luoghi della cultura del Lazio: un nuovo spazio presso l’ex Casa del Fascio

Pomezia, valorizzazione dei luoghi della cultura del Lazio: un nuovo spazio presso l’ex Casa del Fascio

Pubblicato il

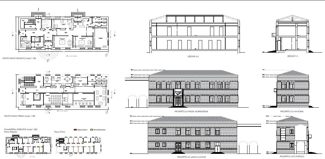
Il Sindaco e la Giunta hanno deliberato il progetto esecutivo dello “Spazio XXI – Ieri Oggi Domani”, un nuovo spazio culturale presso l’ex Casa del Fascio di Pomezia (attuale sede della Polizia Locale) con cui l’Ente partecipa al bando regionale per la valorizzazione dei luoghi della cultura del Lazio. Un progetto ambizioso che mira alla realizzazione di un nuovo spazio culturale, nel cuore della città di Pomezia, come centro di incontro, memoria storica, luogo creativo e di cittadinanza attiva, ponendosi come punto di scambio e di confronto tra le realtà culturali, produttive e giovanili del territorio. Il tema portante è IERI, OGGI e DOMANI ovvero un ponte continuo tra memoria, innovazione e nuove soluzioni. Il progetto, del valore di 375.000 euro, sviluppato sui due piani dell’edificio di piazza Indipendenza, prevede al piano terra una sala dedicata alle origini antiche di Pomezia fruibili con contenuti multimediali (piramidi olografiche, sistemi interattivi, video, stampanti 3d); una sala dedicata alla Città che vuole rendere chiara la percezione tridimensionale del territorio che ci circonda ed essere allo stesso tempo un vero e proprio laboratorio di architettura; una sala dedicata alla pesca e all’agricoltura, con un focus sui popoli fondatori e l’installazione di un sistema di coltivazione acquoponica, che unisce insieme l’allevamento di pesci e il nutrimento di piante. Il primo piano è invece pensato come uno spazio di co-working e sperimentazione, con una sala cinema, una meeting room, una sala della memoria con un archivio storico digitalizzato, una art room in cui verranno condivise le creazioni artistiche di chi vorrà esporre le proprie opere, e un punto ristoro. “Un hub creativo destinato innanzitutto ai giovani della Città – spiega la vice Sindaco Simona Morcellini – Un nuovo spazio che vuole essere il raccordo di tutte le realtà culturali del territorio, dal Museo Lavinium a quello del Novecento, ma soprattutto un luogo vivo, aperto alla cittadinanza, con tecnologie all’avanguardia e aree disponibili alle creatività cittadine e non solo”. “Con questo progetto trasformiamo piazza Indipendenza, centro storico di Pomezia, in una grande area culturale – aggiunge il Sindaco Adriano Zuccalà – L’obiettivo è conservare e valorizzare la storia e il passato della Città proiettandola in un futuro che vede al centro le giovani generazioni e le attività produttive locali, in un sistema di rete che vuole coinvolgere l’intera cittadinanza”. “In caso di esito positivo – conclude il Primo Cittadino – Abbiamo già predisposto un progetto di spostamento del corpo operativo della Polizia Locale in un nuovo edificio”.

 

Impostazioni privacy